Wyjątkowa rezydencja Amay Deluxe w Dehesa de Campoamor
Zapoznaj się z nieruchomością
- Numer referencyjny Costa Blanca 0525R AMOC
- Cena: od 3.200.000 euro netto
Dane ogólne
- Typ budynku: Rezydencja
- Miejscowość: Orihuela Costa
- Lokalizacja: Costa Blanca Południe
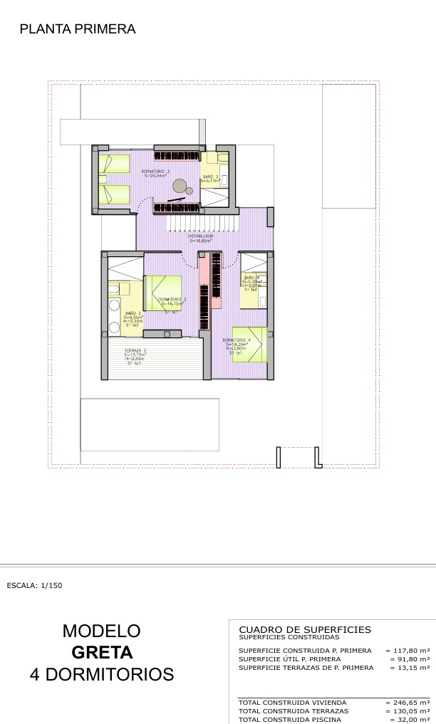
- Ilość sypialni: 4
- Ilość łazienek: 5
- Powierzchnia domu: 246 m2
- Powierzchnia działki: od 500 m2
Lokalizacja
Na południowym wybrzeżu Costa Blanca, w sercu prestiżowej Orihuela Costa, powstało osiedle Amay Deluxe
Jest to ekskluzywna enklawa elegancji i komfortu w miejscowości Dehesa de Campoamor. To miejsce, w którym nowoczesna architektura harmonijnie współgra z naturalnym pięknem śródziemnomorskiego krajobrazu, tworząc przestrzeń idealną do życia i wypoczynku. Nazwa „Campo de amor”, czyli „miejsce miłości”, doskonale oddaje atmosferę tej lokalizacji — pełnej spokoju, uroku i romantyzmu.
Dehesa de Campoamor to prawdziwa perła Costa Blanca, położona zaledwie 50 minut jazdy od międzynarodowego lotniska Alicante-Elche. Miejscowość ta przyciąga miłośników wyrafinowanego stylu życia, oferując dostęp do renomowanych pól golfowych, takich jak Las Colinas Golf & Country Club, Villamartín czy Real Club de Golf Campoamor – uznanych za jedne z najlepszych w regionie. Otaczające tereny zielone, parki naturalne i śródziemnomorska roślinność tworzą scenerię sprzyjającą relaksowi i aktywnemu wypoczynkowi.
Campoamor to także synonim plażowego luksusu. W okolicy znajdują się jedne z najpiękniejszych plaż Costa Blanca: Punta Prima, La Zenia, Mil Palmeras oraz Cabo Roig. Szczególną uwagę warto zwrócić na trzy wyjątkowe plaże – Barranco Rubio, Playa La Glea i Playa de Aguamarina — które zachwycają drobnym, białym piaskiem, krystalicznie czystą wodą i kameralną atmosferą. To miejsca nagradzane Błękitną Flagą, idealne do kąpieli słonecznych, spacerów i wypoczynku w stylu premium.
Otoczenie
Amay Deluxe to osiedle zaprojektowane z myślą o najbardziej wymagających klientach, którzy cenią sobie luksus, prywatność i najwyższy standard życia.
Każda willa to niezależna rezydencja, stworzona z dbałością o detale i wykończona materiałami najwyższej jakości. Położone zaledwie cztery minuty od plaż Orihuela, w tym od Playa de Aguamarina, wille oferują nie tylko doskonałą lokalizację, ale także wyjątkowy komfort codziennego życia.
W bezpośrednim sąsiedztwie znajdują się liczne udogodnienia, które podnoszą jakość życia: wykwintne restauracje serwujące lokalne i międzynarodowe specjały, dobrze zaopatrzone supermarkety, apteki oraz centrum handlowe La Zenia Boulevard – największe na wybrzeżu, oferujące ponad 150 butików, kawiarni i punktów rozrywki. To miejsce, w którym codzienność nabiera wakacyjnego blasku, a każdy dzień staje się okazją do celebracji stylu życia w śródziemnomorskim klimacie.
Układ funkcjonalny
Wille idealnie wkomponowują się w otaczającą przyrodę, oferując spokój i prywatność.
Ich nowoczesny, otwarty design obejmuje tarasy krajobrazowe, piękny ogród oraz elegancki basen — prawdziwą oazę relaksu. Przestrzeń dopasowana jest do Twojego stylu życia.
Każda willa typu Greta została zaprojektowana w otwartym stylu, który maksymalizuje przestrzeń, zapewniając komfort i swobodę. Wille na osiedlu rezydencjalnym Deluxe szyte są na miarę i dopasowane do indywidualnych wymagań klienta. Możesz wybrać od dwóch do czterech sypialni, prywatny ogród, miejsce parkingowe oraz basen o różnych rozmiarach – wszystko dostosowane do Twoich potrzeb.
Powierzchnia całkowita willi (z solarium i tarasami) zaczyna się od 376 m², a Działki o powierzchni od 500 m².
Na parterze znajduje się salon z otwartą kuchnią i łazienka oraz sypialnia z własną łazienką i garderobą. Na piętrze trzy sypialnie, każda z własną łazienką oraz taras. Schody z piętra prowadzą na solarium o powierzchni ponad 65 m². Willa posiada miejsca postojowe,
Do tego na działce zlokalizowany jest piękny ogród oraz elegancki duży i wygodny basen – prawdziwa oaza relaksu! To idealne miejsce dla osób ceniących komfort, luksus i nowoczesne udogodnienia – Twoja prywatna oaza na Costa Blanca!
Bezpieczny zakup i pełne wsparcie prawne
Nasz zespół zapewnia kompleksową obsługę prawną. Polski adwokat w Hiszpanii, dr inż. Grzegorz Stankiewicz, sprawdził stan prawny nieruchomości oraz kondycję finansową dewelopera. Zajmie się negocjacją umowy i wszystkimi formalnościami. Pomoc prawna przy zakupie z naszej oferty jest bezpłatna, a dodatkowo nie pobieramy prowizji.
Oferujemy również wsparcie przy zakładaniu spółki lub filii firmy w Hiszpanii. Zakup nieruchomości na firmę może przynieść korzyści podatkowe, w tym oszczędności na VAT. Przy zakupie domu na firmę otrzymasz 50% rabatu na założenie filii.
Zarezerwuj wizytę już dziś
Wejdź do zakładki „Dni otwartych drzwi w Hiszpanii”, wybierz interesującą Cię willę i dogodny termin. Zorganizujemy indywidualny dzień otwarty, poświęcony wyłącznie Tobie. Zapraszamy na Costa Blanca – miejsce, gdzie komfort spotyka się ze słońcem, a styl życia nabiera śródziemnomorskiego blasku.
Galeria












Uwaga: niektóre z prezentowanych nieruchomości po niedługim upływie czasu od publikacji mogą być już niedostępne.
Kontakt
W przypadku zainteresowania lub pytań dotyczących tej luksusowej nieruchomości możecie Państwo:
- wysłać je na email: biuro@stankiewiczabogados.pl
- skontaktować się telefonicznie: +34 681 678 323
- umówić konsultację na naszej stronie
Formularz kontaktowy
Jak zamówić konsultację online?
Jeśli masz już upatrzoną lub zarezerwowaną nieruchomość w Hiszpanii, wybierz termin konsultacji z naszym adwokatem. W kalendarzu na zielono zaznaczone są wolne godziny konsultacji, a na czerwono już zajęte. Kliknij wolną godzinę, która ci odpowiada. Następnie kliknij przycisk „Kontynuuj”. Po wysłaniu i opłaceniu zamówienia do 24 godzin otrzymasz link do spotkania na platformie Microsoft Teams.
Jeśli masz już wybrany termin konsultacji prawnej, wypełnij formularz wpisując swoje dane kontaktowe jako klient indywidualny lub jako przedsiębiorca, w przypadku gdy chcesz kupić nieruchomość na firmę. Jeśli masz umowę rezerwacyjną lub inne dokumenty prześlij je emailem na e-mail adwokat@stankiewiczabogados.pl , tak aby adwokat mógł się zapoznać z nimi przed konsultacją prawną.
W godzinie konsultacji wejdź na link do spotkania, który otrzymałeś na emaila. Kliknij przycisk dołącz na platformie Microsoft Teams. Konsultacje prawne przeprowadzi z Tobą adwokat dr inż. Grzegorz Stankiewicz. Adwokat dołoży wszelkich starań, aby doradzić Tobie jak zakupić bez ryzyka nieruchomość w Hiszpanii i jakie podjąć dalsze kroki prawne.
Zobacz inne nieruchomości
Wille z prywatnym basenem Vegagolf 3 znajdują się tuż przy polu golfowym. Każda willa zaprojektowana jest na rzucie prostokata. Posiada prywatny basen, miejsce parkingowe, ogród w stylu Ibizy. Istnieją dwie wersje tego domu jedna bez a druga z dodatkowym solarium o powierzchni ponad 94 m²
To wymarzone miejsce dla miłośników ekskluzywnego wypoczynku i pasjonatów golfa. Całą okolicę otaczają malownicze tereny zielone oraz pola golfowe. Campoamor to także rajskie plaże, takie jak Punta Prima, La Zenia, Mil Palmeras czy, na północy, Cabo Roig. Turyści mogą korzystać z trzech wyjątkowych plaż: Barranco Rubio, Playa La Glea i Playa de Aguamarina z drobniutkim, białym piaskiem charakterystycznym dla tego wyjątkowego wybrzeża.
Osiedle Lo Marabu to kompleks nowoczesnych, gotowych do zamieszkania willi typu Nova, położonych zaledwie kilka minut spacerem od pola golfowego. Każda nieruchomość została zaprojektowana na rzucie kwadratowym, co zapewnia optymalny rozkład przestrzeni. Do dyspozycji mieszkańców jest prywatny basen, miejsce parkingowe, ogród inspirowany stylem Ibizy oraz przestronne solarium z widokiem na saliny. Domy oddawane są w standardzie „pod klucz” – w pełni umeblowane i wyposażone, gotowe do natychmiastowego zamieszkania. Wystarczy walizka, by rozpocząć nowy rozdział życia pod hiszpańskim słońcem.
La Herrada to jedna z najbardziej ekskluzywnych dzielnic Los Montesinos. Położona na lekkim wzniesieniu, oferuje zachwycające widoki na wybrzeże oraz solniska Torrevieja i La Mata. To idealne miejsce dla osób poszukujących ciszy, przestrzeni i wysokiego standardu życia. W tej części powstają nowoczesne wille o przemyślanym układzie i eleganckim wykończeniu. Na zewnątrz znajduje się taras, prywatny basen, miejsce parkingowe, ogród w stylu iberyjskim oraz solarium z panoramicznym widokiem.
Wille typu Juliet znajdują się kilka minut spacerem od pola golfowego. Każda willa zaprojektowana jest na rzucie w kształcie litery L. Posiada prywatny basen, miejsce parkingowe, ogród w stylu Ibizy oraz solarium z widokiem na saliny. Domy są oddawane w standardzie „pod klucz” w pełni umeblowane i wyposażone. Wystarczy walizka i można się wprowadzać.
Rezydencjalne osiedle Lo Marabu znajduje się zaledwie kilkaset metrów od pola golfowego La Marquesa Golf. Każda willa ma wjazd od strony drogi wewnętrznej oraz własny, prywatny basen. Nieruchomość oddawana jest w standardzie „pod klucz” — w pełni wyposażona w sprzęty kuchenne i umeblowana w 100%. Wystarczy przysłowiowa szczoteczka do zębów i walizka ubrań, aby od razu się wprowadzić i zamieszkać
Ciudad Quesada to prawdziwa oaza dla entuzjastów golfa. Pole La Marquesa Golf, założone w 1989 roku przez Justo Quesadę, przyciąga graczy z całego świata. Kosmopolityczna atmosfera, zróżnicowane trasy i wysoki standard techniczny sprawiają, że gra na tym polu to czysta przyjemność. W pobliżu rozciągają się malownicze tereny przyrodnicze – laguny La Mata i Torrevieja to idealne miejsca na spacery, obserwację ptaków i relaks w otoczeniu natury. Zielone parki i rezerwaty tworzą harmonijne tło dla życia w Ciudad Quesada.
Rezydencjalne osiedle Urbes Golf to elegancki kompleks willi położonych na wzgórzu, z którego roztacza się panoramiczny widok na pole golfowe La Marquesa Golf. Osiedle charakteryzuje się spokojem, prywatnością oraz wysokim standardem wykończenia.
Miejscowość Vistabella, jak sama nazwa wskazuje, oferuje jedne z najpiękniejszych widoków w regionie. Położone na południowym zboczu wzgórza, osiedle rozciąga się nad salinami Torrevieja i Morzem Śródziemnym, zapewniając spektakularne pejzaże o każdej porze dnia. Dzięki wyjątkowemu mikroklimatowi, mieszkańcy mogą korzystać z niepodgrzewanego basenu przez cały rok, co czyni to miejsce idealnym zarówno na wakacje, jak i do życia na stałe. Osiedle rezydencjalne Bella Vista to golfowy raj tuż przy osiedlu znajdują się dwa pola golfowe Vistabella Golf i kilka kilometrów dalej Las Colinas Golf od południa - jedno z najbardziej prestiżowych pól w Hiszpanii, pięciokrotnie uznane za najlepsze.
Rezydencja La Herrada to prestiżowa część Los Montesinos znajduje się w najbardziej prestiżowej części La Herrada, oferując wyjątkowe widoki na wybrzeże i saliny. To uprzywilejowany obszar Costa Blanca, wyposażony we wszystkie niezbędne usługi, z dogodnym dostępem do lotniska i plaż.
Projekt Bella Vista realizowany jest w czterech etapach i obejmuje zarówno niezależne wille, jak i bungalowy na parterze oraz piętrze. Każda nieruchomość została zaprojektowana z dbałością o funkcjonalność i estetykę. Przestronne wnętrza, duże przeszklenia, jasne pomieszczenia i nowoczesne wykończenia tworzą atmosferę komfortu i elegancji. Przykładowa piętrowa willa oferuje trzy sypialnie, każda z własną łazienką, otwartą kuchnię połączoną z salonem oraz prywatny basen o powierzchni 32 m². Wspólne ogrody, strefy rekreacyjne i basen dla mieszkańców sprzyjają integracji i wypoczynkowi w otoczeniu zieleni. Bella Vista to propozycja dla tych, którzy szukają harmonii między naturą, komfortem i nowoczesnym stylem życia. Idealna zarówno jako dom wakacyjny, jak i miejsce do zamieszkania na stałe.
Osiedle domów szeregowych Alba Salina to kompleks nowoczesnych willi, położonych zaledwie kilkaset metrów od pola golfowego oraz ścieżki rowerowej wijącej się wzdłuż rzeki i prowadzącej na urokliwe plaże Guardamar.
Lo Marabu to nowoczesny kompleks rezydencjalny, zaprojektowany z myślą o komforcie i estetyce. Położony zaledwie kilka minut spacerem od pola golfowego, stanowi harmonijne połączenie jakości, funkcjonalności i stylu. Każdy bungalow został wykonany z najwyższej klasy materiałów, gwarantujących trwałość i elegancję. Urbanizacja oferuje szeroki zakres usług oraz ekskluzywne strefy wspólne, w tym basen, miejsce parkingowe, boisko i plac zabaw. Nieruchomości oddawane są w standardzie „pod klucz” – w pełni umeblowane i wyposażone, gotowe do natychmiastowego zamieszkania. Wystarczy walizka, by rozpocząć nowy rozdział życia pod hiszpańskim niebem.
Bella Vista, jak sama nazwa wskazuje, oferuje jedne z najpiękniejszych widoków w regionie. Położone na południowym zboczu wzgórza, osiedle rozciąga się nad salinami Torrevieja i Morzem Śródziemnym, zapewniając spektakularne pejzaże o każdej porze dnia. Dzięki wyjątkowemu mikroklimatowi, mieszkańcy mogą korzystać z niepodgrzewanego basenu przez cały rok, co czyni to miejsce idealnym zarówno na wakacje, jak i do życia na stałe.
Na osiedlu rezydencjalnym Amay Deluxe znajdują się luksusowe wille szyte na miarę dla najbardziej wymagających. Ten prestiżowy kompleks oferuje niezależne wille, usytuowane zaledwie cztery minuty od plaż Orihuela. Otoczony wszelkimi udogodnieniami, takimi jak restauracje, supermarkety i apteki, tworzy prawdziwy raj na ziemi.
Ta futurystyczna rezydencja typu Akira została zaprojektowana w otwartym stylu, który maksymalizuje przestrzeń, zapewniając komfort i swobodę. Wille na osiedlu rezydencjalnym Deluxe szyte są na miarę i dopasowane do indywidualnych wymagań klienta. Możesz wybrać od trzech do czterech sypialni, prywatny ogród, miejsce parkingowe oraz basen o różnych rozmiarach - wszystko dostosowane do Twoich potrzeb.
Każda willa typu Marta została zaprojektowana w otwartym stylu, który maksymalizuje przestrzeń, zapewniając komfort i swobodę. Wille na osiedlu rezydencjalnym Deluxe szyte są na miarę i dopasowane do indywidualnych wymagań klienta. Możesz wybrać od trzech do czterech sypialni, prywatny ogród, miejsce parkingowe oraz basen o różnych rozmiarach - wszystko dostosowane do Twoich potrzeb.
Każda willa typu Sophie została zaprojektowana w otwartym stylu, który maksymalizuje przestrzeń, zapewniając komfort i swobodę. Wille na osiedlu rezydencjalnym Deluxe szyte są na miarę i dopasowane do indywidualnych wymagań klienta. Możesz wybrać od dwóch do czterech sypialni, prywatny ogród, miejsce parkingowe oraz basen o różnych rozmiarach - wszystko dostosowane do Twoich potrzeb.
Kompleks willowy Mutxamel jest symbolem doskonałości. Oferuje nieskazitelną basenową wspólnotę, zadbane ogrody, bezpieczną strefę dla dzieci oraz w pełni wyposażony klub społeczny. Wszystkie przestrzenie zostały zbudowane z najwyższej jakości materiałów, zapewniając trwałość i styl. To miejsce, gdzie jakość spotyka funkcjonalność, tworząc idealne środowisko dla mieszkańców, którzy szukają komfortu i przyjemności bez kompromisów w jakości.
Jednym z najbardziej luksusowych i spokojnych miejsc w Los Montesinos jest La Herrada. To wyjątkowa lokalizacja oferuje przepiękne widoki na wybrzeże oraz solniska Torrevieja i La Mata. Położenie to stanowi idealną przestrzeń dla osób ceniących otoczenie naturalne oraz dogodną lokalizację. Stąd jest blisko zarówno do lotniska Alicante-Elche 30 minut samochodem, jak i pięknych plaż Guardamar. W La Herrada można znaleźć nowoczesne wille
Ekskluzywne i nowoczesne osiedle willowe w Polop oferuje wyjątkowe życie w śródziemnomorskim stylu. Dostępne opcje z 2 lub 3 sypialniami wyróżniają się eleganckim designem i funkcjonalnością. Przestronne tarasy, ogrody i możliwość dodania prywatnego basenu lub jacuzzi sprawiają, że jest to idealne miejsce do relaksu. Wille w Polopie zaprojektowano z myślą o integracji z otoczeniem. Oferują przestrzenie na świeżym powietrzu takie jak tarasy, solaria czy prywatne ogrody. Opcjonalny basen lub jacuzzi dodatkowo podnoszą komfort. Widoki na zatokę Altea i góry Alicante nadają temu miejscu wyjątkowy charakter. Każda willa jest wyposażona w nowoczesne kuchnie z pełnym zestawem urządzeń oraz przestronne łazienki o luksusowych wykończeniach. Jasne i przestronne wnętrza z wysokiej jakości materiałami to połączenie komfortu i współczesnej estetyki.
Wille w Finestrat wyróżniają się nowoczesnym i eleganckim designem, harmonijnie wpisując się w naturalne otoczenie Costa Blanca. Elewacje cechują się czystymi, minimalistycznymi liniami, wzbogaconymi o szklane balustrady, które umożliwiają niczym niezakłócony widok. Przestronne prywatne ogrody zaprojektowano z myślą o spokoju i prywatności, a prywatny basen, wyposażony w oświetlenie, oraz strefa wypoczynkowa z nawierzchnią lub sztuczną trawą zapewniają wygodę. Niektóre wille oferują opcjonalny taras na dachu, idealny do relaksu i korzystania ze słońca śródziemnomorskiego.
Odkryj ekskluzywne osiedle luksusowych willi „New Construction Residential” w Pilar de la Horadada, Zespół willi zlokalizowanych jest na prestiżowym polu golfowym „Lo Romero”. Te nowoczesne, parterowe wille posiadają 3 sypialnie, 2 łazienki, toaletę, otwartą kuchnię zintegrowaną z salonem, szafy wnękowe, prywatny ogród z basenem oraz miejsce parkingowe. Pilar de la Horadada, położona na granicy Wspólnoty Walenckiej i regionu Murcji, oferuje urok typowej hiszpańskiej wioski, zaledwie 2 km od wybrzeża i plaż Torre de la Horadada.
Odkryj nowy kompleks mieszkaniowy w Algorfie – ekskluzywną inwestycję oferującą maksymalny komfort i najwyższą jakość życia na Costa Blanca. Te piękne wille, rozmieszczone na dwóch piętrach, posiadają 3 sypialnie, 2 łazienki, amerykańską kuchnię zintegrowaną z salonem oraz duże okna, które prowadzą bezpośrednio na taras i do prywatnego basenu.